3 bedroom Semi-Detached house for sale in High Street Brackley NN13

Sale Price: £295,000

High Street Brackley, NN13 7DS

Semi-Detached
3 Bed(s)
-- Bath(s)
Available

 14 High Street, Wendover,
*When you call don't forget to mention Overstreet.co.uk

Request Detail

I am interested in other properties in this area:
 Schedule a Viewing Meeting with the Agent for this Property.

Street Address

High Street Brackley, NN13 7DS

Property description

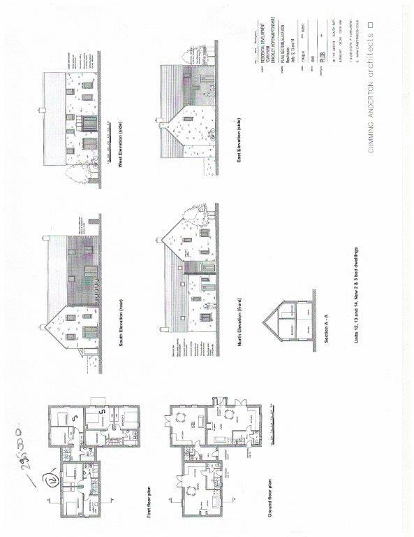
A brand new stone built home with three bedrooms part of this exciting development of new builds and conversions in the conservation area of Brackley. The location tucked away just off the High Street could hardly be more convenient. This fine home is an individual semi-detached with a wrap around garden and two allocated parking spaces. It has been built to carefully blend in with its historic surroundings using top quality materials and craftsmanship and is finished to a high specification. The kitchen / breakfast room features eye catching gloss units with cream granite worktops and high end appliances to include electric oven, gas hob and fridge freezer. There is a wood burner in the sitting room and tiled flooring to the whole of the ground floor. The LED lighting and timber flush casement windows add character. There is gas heating, underfloor to the ground floor and to the radiators upstairs.

Property Features :

  • STUNNING LOCATION JUST OFF THE HIGH STREET
  • THREE BEDROOMS
  • UNDERFLOOR HEATING TO THE GROUND FLOOR RADIATORS TO THE FIRST FLOOR
  • HIGH SPECIFICATION THROUGHOUT
  • WOOD BURNING STOVE

Property Info:

 Get personalised semi-detached listings that meet your exact requirements.