4 bedroom Terraced house for sale in Kersey Court Frome BA11

Sale Price: £215,000

Kersey Court Frome, BA11 3NE

Terraced
4 Bed(s)
-- Bath(s)
Not Available Anymore

 24 Bath Street, Frome,
*When you call don't forget to mention Overstreet.co.uk

Request Detail

I am interested in other properties in this area:
 Schedule a Viewing Meeting with the Agent for this Property.

Street Address

Kersey Court Frome, BA11 3NE

Property description

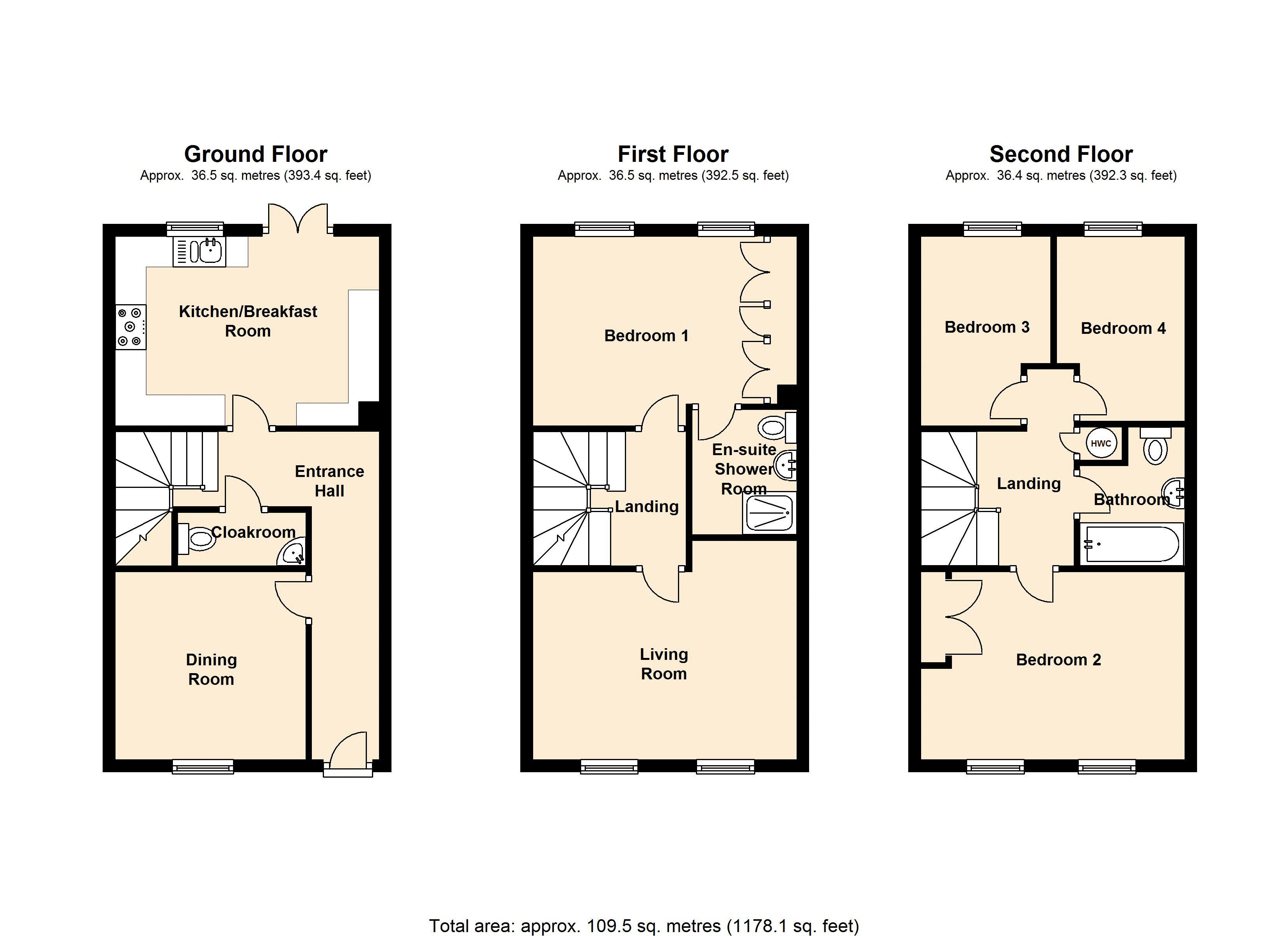
Located within this tree-lined square within the Ley Vale development; this well-designed property offers accommodation arranged over three floors comprising: ground floor: entrance hall, cloakroom, dining room, kitchen/breakfast room, first floor: living room, master bedroom with en-suite and second floor: three further bedrooms and bathroom

Entrance Hall
Stairs to first floor, wood effect laminated floor, radiator.

Cloakroom
Close coupled WC with dual flush, corner pedestal basin, radiator, extractor fan.

Dining Room - 10' 2'' x 10' 2'' (3.10m x 3.10m)
window to front, radiator.

Kitchen/Breakfast Room - 14' 3'' x 10' 1'' (4.34m x 3.07m)
window & twin doors to garden, modern fitted with a range of matching base & wall units, metal edged worksurfaces, integrated dishwasher, gas stainless steel range cooker with extractor fan over, 1½ bowl single drainer sink unit with mixer and hose taps, part tiled walls, further appliance space.

First Floor Landing
Stairway to second floor.

Living Room - 14' 3'' x 11' 8'' (4.34m x 3.55m)
two windows to front, double radiator.

Bedroom One - 12' 5'' x 10' 1'' (3.78m x 3.07m)
two windows to rear, radiator, wall-to-wall fitted wardrobes.

En-Suite Shower - 6' 8'' x 5' 6'' (2.03m x 1.68m)
900 shower cubicle with mains shower unit, pedestal basin and close coupled WC, shaver point, extractor, plumbing for washing machine.

Second Floor Landing
Loft access, built in airing cupboard.

Bedroon Two - 14' 3'' x 10' 0'' (4.34m x 3.05m)
two window to front, 2 double built-in wardrobes, radiator.

Bedroom Three - 10' 1'' x 7' 2'' (3.07m x 2.18m)
window to rear, radiator.

Bedroom Four - 9' 10'' x 6' 10'' (2.99m x 2.08m)
window to rear, radiator.

Bathroom - 5' 6'' x 7' 5'' (1.68m x 2.26m)
panelled bath with hand shower attachment, pedestal basin, close couple WC, shaver point, extractor fan.

Outside - 18' 6'' x 14' 8'' (5.63m x 4.47m)
rear yard style garden with patio area, rear gate leading to garage/parking area, outside tap, small timber store.

Garage & Parking - 17' 0'' x 8' 10'' (5.18m x 2.69m)
single garage with up & over door, eaves storage, designated parking to the front. The garage is situated in a block nearby.

Property Features :

  • Terraced Town House
  • Four Bedrooms, Master En-Suite
  • Two Receptions
  • Modern Fitted Kitchen
  • Garden, Garage & Parking

Property Info:

 Get personalised terraced listings that meet your exact requirements.