Property to rent in Strand Road Londonderry BT48

Rent: £35000.00

Strand Road Londonderry, BT48 7BN

Property
-- Bed(s)
-- Bath(s)
Not Available Anymore

Request Detail

I am interested in other properties in this area:
 Schedule a Viewing Meeting with the Agent for this Property.

Street Address

Strand Road Londonderry, BT48 7BN

Property description

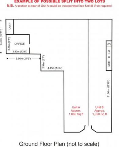
To Let in One or More Lots - Substantial Ground Floor Shop & Store with First Floor Offices & Stores loacted in this prime area of the City. Convenient to Quayside Shopping Centre, City Centre, main professional area of the City, Northwest Regional College, Magee University and Derry City Council Offices.
Floor Areas: Ground Floor approximately 268 sqm (2,880 sq ft) plus store of approximately 170 sqm (1,830 sq ft); First Floor approximately 106 sqm (1,140 sq ft) plus store of approximately 175 sqm (1,880 sq ft).
Rateable Value: £33,100.  EPC C60

Property Info:

 Get personalised property listings that meet your exact requirements.